19" jednodielny rack TRITON 9U/400 mm
Popis a parametre
19" jednodielny rack TRITON 9U/400 mm
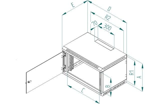
Rozvádzač Delta B je celozváraný nástenný jednodielny rozvádzač s celosklenenými dverami, ktoré sa vďaka masívnym závesom dajú otvoriť v uhle takmer 180°. Dôležitou súčasťou výrobku sú otvory na káble, ktoré sa nachádzajú na hornej a dolnej stene. Ďalšie dva otvory sa nachádzajú na zadnej stene rozvádzača. Otvory sú utesnené vylamovacími zátkami, ktoré sa dajú vylomiť napr. skrutkovač. 19" zariadenia sú nainštalované na vertikálnych koľajniciach, ktoré sa dajú plynule prispôsobiť hĺbke tela skrine. Perforácia zabezpečuje prirodzenú cirkuláciu vzduchu a chladenie komponentov. Presné rozmery a ďalšie technické údaje sú uvedené nižšie (hodnoty R1 a R2 označujú vzdialenosť montážnych otvorov na zavesenie rozvádzača na stenu). Maximálne zaťaženie skrinky je 30 kg. Rozmery: A - 500 mm B - 395 mm C - 490 mm D - 600 mm E - 395 mm R1 - 454 mm R2 - 420 mm Hmotnosť - 17,4 kg Balenie: Kľúč - predné dvierka 2x Skrutka 6x50 4x Podložka 6,6 4x Hmoždinka 10 4x Plastová podložka 8x Plávajúca matica M6 8x Skrutka M6x16 8x Prachová krytka 1x..
ParametrePridať do porovnania
Typ dátového rozvádzača
Nástenné 19"
Hloubka (mm)
400
Šířka (mm)
600
Výška rozvaděče (U)
9
19" jednodielny rack TRITON 9U/400 mm
Naposledy navštívené








